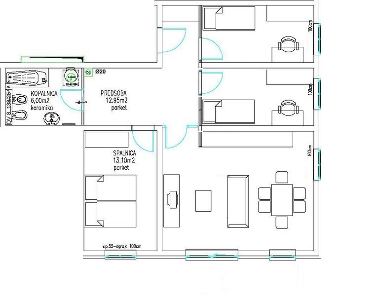
4-SOBNO STANOVANJE Z ATRIJEM
LENART, CENTER: Prodamo izredno svetlo in lepo urejeno 4-sobno stanovanje, ki se nahaja na odlični in mirni lokaciji v Lenartu. Izredna prednost stanovanja je prostoren atrij ter neposredna bližina potrebne infrastrukture, ki je dostopna peš.
LASTNOSTI NEPREMIČNINE:
Video predstavitev nepremičnine: https://youtu.be/hr3hVSHS8UY
Priporočamo ogled in nakup vsem, ki iščejo urejeno stanovanje v prijetnem naselju ter želijo ob tem nekaj svojega zunanjega prostora, kjer bodo lahko uživali na prostem.
V neposredni bližini je vsa potrebna infrastruktura: šola, priključek AC, trgovina, zdravstveni dom, ...
| Avtobusna postaja: | 0.5 km / 6 min |
| Pekarna: | 0.5 km / 5 min |
| Pošta: | 0.5 km / 6 min |
| Bankomat: | 0.6 km / 7 min |
| Vrtec: | 0.4 km / 4 min |
| Trgovina: | 0.6 km / 7 min |
