LOKACIJA: Lenart – ob ŠRC Polena; v bližini narave, centra Lenarta in vse potrebne infrastrukture.
Virtualni ogled nepremičnine: https://youtu.be/WxMAWgE04-M
ODDAMO izjemno, nadstandardno 4 sobno stanovanje, ki se nahaja na odlični lokaciji v Lenartu.
Stanovanje je fantastično; prostorno, moderno, svetlo, z obilo naravne svetlobe in pozitivne energije. ODDAJA se opremljeno. Stanovanje nudi kvalitetno bivanje.
LASTNOSTI NEPREMIČNINE:
Stanovanje se nahaja v 1/1 nadstropju manjšega Vila bloka, grajenega leta 2021.
Parkiranje za stanovalce je urejeno na ograjenem parkirišču za rampo (v letošnjem letu bodo izvedeni nadstreški za avtomobile).
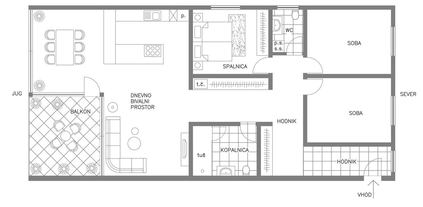
Površina stanovanja:
BRUTO: 99,3 m2 (Gurs)
NETO: 92,3 m2 (Gurs)
Razporeditev: Prostoren hodnik, ogromen dnevno bivalni prostor z izhodom na velik balkon, spalnica, 2x soba, kopalnica (tuš in wc) ter ločeno stranišče. Stanovanje je izjemno sončno, svetlo ter ima čudovite poglede na zeleno okolico.
Stanovanje se prodaja popolnoma opremljeno. Vsa oprema je višjega cenovnega razreda in le malo rabljena (stanovanje je staro 1 leto).
TLORIS stanovanja si lahko ogledate med slikami v oglasu ali v zavihku TLORIS!
Lega: jug, zahod, sever
Talne obloge: gotovi parket, keramika
Okna: 3 slojna PVC z zunanjimi ALU žaluzijami na elektro pogon.
Protivlomna vhodna vrata.
Visok strop.
Ogrevanje: lastna toplotna črpalka, ogrevanje preko talnega gretja. Izjemno nizki stroški!
V vseh prostorih stanovanja je sistem za rekuperacijo ter priprava za klimo.
Priključki: elektrika, voda, telefon, Catv, optika (v vseh sobah)
K stanovanju pripada tudi zunanja shramba.
Vseljivo takoj.
Priporočam vsem, ki iščete kvalitetno bivanje na odlični lokaciji.
V neposredni bližini je vsa potrebna infrastruktura: šola, vrtec, trgovina, tržnica, pošta, zelene in rekreacijske površine, center Lenarta!
