Opomba: 4.11.2024 - stanovanje je v dogovorjeni prodaji. Ogledi na tej točki niso možni.
Maribor, Pobrežje, Vzhodna ulica: prodamo prostorno in svetlo 2,5 sobno stanovanje z zaprtim balkonom / ložo. Stanovanje se nahaja v pritličju novejšega vila bloka z dvigalom in garažami – Vila blok Brezjanski gaj.
V neposredni bližini se nahajajo mnoge sprehajalne poti (le 300 m do Stražunskega gozda), avtobusna postaja, trgovski centri, osnovna šola, vrtec, pošta, lekarna.
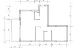
Stanovanje površine 79,7 m2 zajema širok hodnik, ločen WC, kopalnico, otroško sobo, spalnico ter velik skupni prostor s kuhinjo, jedilnico in dnevno sobo z izhodom v zastekljen balkon, kjer je omogočen neposreden dostop na zelenico. V kleti se nahaja kletni boks.
Povezava do videa: https://youtu.be/DcmoqqFTxG4
LASTNOSTI NEPREMIČNINE:
Stroški: upravnik Uprastan za 3 osebe cca. 93 € / mesec, rez. sklad 15,94 € / mesec, ogrevanje stanovanja max. 100 € / mesec v ogrevalni sezoni, voda in elektrika po porabi.
Ne zamudite priložnosti in pokličite zdaj!
| Avtobusna postaja: | 300 m |
| Pošta: | 1000 m |
| Šola: | 1000 m |
| Trgovina: | 700 m |
