MARIBOR – NOVA VAS
Na Radvanjski cesti, v mestni četrti Nova vas posredujemo pri prodaji svetlega, delno opremljenega 1-sobnega stanovanja, s kletjo, dodatno shrambo in možnostjo parkiranja pred stavbo.
OSNOVNE ZNAČILNOSTI:
Večstanovanjski objekt s tremi stanovanji, letnik 1910, fasada obnovljena l. 2020, prenova stanovanja l. 2004, pritličje, PVC okna, parkiranje na dvorišču, nizki stroški. Kuhinjski blok je iz l. 2023, preostalo pohištvo je starejše. Kopalnica in stranišče sta potrebna prenove.
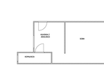
Velikost: neto tlorisna površina 32,8 m2, uporabna površina 29,2 m2
Razporeditev prostorov: kuhinja z jedilnico, soba, kopalnica s tušem, stranišče.
Lastnosti in oprema:
Nepremičnina je vpisana v ZK in prosta bremen. Prodaja se opremljena, kot je vidno na fotografijah.
Lega:
Stanovanje je orientirano na vzhod (soba) in zahod (kuhinja z jedilnico), s pogledom na cvetlični vrt in notranje dvorišče. V neposredni bližini je trgovina, zdravstvena postaja, lekarna, šola, vrtec, knjižnica in ostala bistvena infrastruktura.
Namig:
Manjše stanovanje z nizkimi stroški, potrebno prenove, a z nekaj vložka ga je mogoče urediti v simpatičen in udoben dom po meri novega lastnika.
Vabljeni na ogled!
Za dodatne informacije in rezervacijo termina ogleda pokličite na telefonsko številko 051 610 557 (Nataša Goričan) ali pišite na e-mail: [email protected]
| Avtobusna postaja: | 150m |
| Pekarna: | 150m |
| Pošta: | 300m |
| Vrtec: | 350m |
