Prodamo izjemno hišo v Zgornjem Dupleku
Hiša se nahaja na zeleni, mirni in sončni lokaciji, le 15 minut vožnje do središča Maribora.
Hiša je kakovostno grajena, s sodobno arhitekturo in premišljenim tlorisom, ki ustvarja svetle, zračne in prijetne prostore. Skeletna konstrukcija in steklene površine zagotavljajo obilico naravne svetlobe ter visoko energetsko učinkovitost. Ponaša se z vrhunskimi materiali, izredno pozitivno energijo in toplino domačnosti, kjer je vsak kotiček skrbno oblikovan za udobno in prijetno bivanje.
Video presentation (EN): https://youtu.be/JxumV17iGL4
Link do oglasa: https://24nep.si/oglas/505726-prodaja-hisa-samostojna-podravska-duplek
LASTNOSTI NEPREMIČNINE:
Letnik gradnje: 2021
Montažna hiša sistem KAGER, leseno – stekleni hibrid
Sistem Vita NOVA Modern
Površina hiše:
198,8 m2 (neto bivalna površina)
Etaže in razporeditev: P + M
PRITLIČJE: sprejemni prostor/predprostor, prostor za savno, povezan dnevno bivalni prostor s stopniščem, ki obsega kuhinjo, jedilnico in dnevno sobo z izhodom na teraso in zelenico (S,Z), soba za goste, kopalnica z wc
MANSARDA: prostorna galerija, 2x otroška soba, otroška kopalnica, kabinet, spalnica z prostorom za garderobo in lastno kopalnico
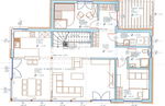
TLORIS posamične etaže si lahko ogledate v zavihku TLORIS ali med slikami oglasa.
Parcela: 1.146 m²
Dovoz: asfaltiran in prostoren
Streha: enokapna 7° (trapezna pločevina), predpriprava za fotovoltaiko, strelovod
Okna: les/ALU 3-slojna, varnostna stekla v nadstropju, ALU žaluzije na elektro pogon
Vrata: notranja Lip Bled, vhodna ALU Inotherm
Talne obloge: parket TILO beljen hrast, italijanska keramika, stopnice in ograja iz hrastovega lesa (mizarstvo MC)
Priključki: elektrika, voda, kanalizacija, optika
Ogrevanje: toplotna črpalka zrak–voda Viessmann VITOCAL, talno gretje Harreither Ecotherm
Prezračevanje: rekuperacija Zehnder ComfoAir
Klimatske naprave: pritličje in nadstropje – LG
DODATNO:
Prostor za savno: možna različna uporaba prostora, tudi kot poslovni prostor z samostojnim vhodom
Videonadzor (5 zunanjih kamer)
Kamin Piazzetta
Zbiralnik deževnice
Oprema: Vsa oprema in vgrajeni materiali so visokega cenovnega razreda. Ostane po dogovoru.
Zemljiškoknjižno stanje: urejeno, brez bremen
Gradbena dokumentacija: urejena
Hiša ponuja kvalitetno bivanje z obilico svetlobe, intime in pozitivne energije. Zaradi svoje urejenosti nudi takojšnjo vselitev brez dodatnih vlaganj.
Hiša stoji na koncu ulice v Zgornjem Dupleku, obdana z zelenjem in travniki, kar nudi mir, zasebnost in stik z naravo.
V neposredni bližini je vsa potrebna infrastruktura. Šola in vrtec 5 min hoje.
Spletna stran Kager: www.kager.si
Hiša Kager se ponaša z izjemno energetsko učinkovitostjo, ki jo zagotavljajo napredne izolacijske tehnike, premišljeno umeščene steklene površine ter izkoriščanje pasivne sončne energije. Hkrati ponuja zdrav in naraven bivalni prostor, saj je zgrajena iz obnovljivih materialov, predvsem lesa, ki pozitivno vpliva na počutje in zdravje. Lesena in steklena konstrukcija ustvarja toplo, domače vzdušje, obenem pa hiša ostaja energijsko učinkovita in okolju prijazna.
Za dodatne informacije in ogled:
Nataša Poljanec, št. licence: 3061
+386 (0)40 501 553
natasa.p@24nep.si
Z veseljem vam svetujem tudi pri prodaji vaše nepremičnine!
| Avtobusna postaja: | 400m |
| Trgovina: | 1300m |
| Park/igrišče: | 2300m |
| Šola: | 500m |
| Veterinar: | 1800m |
| Vodni športi: | 3.1km |
