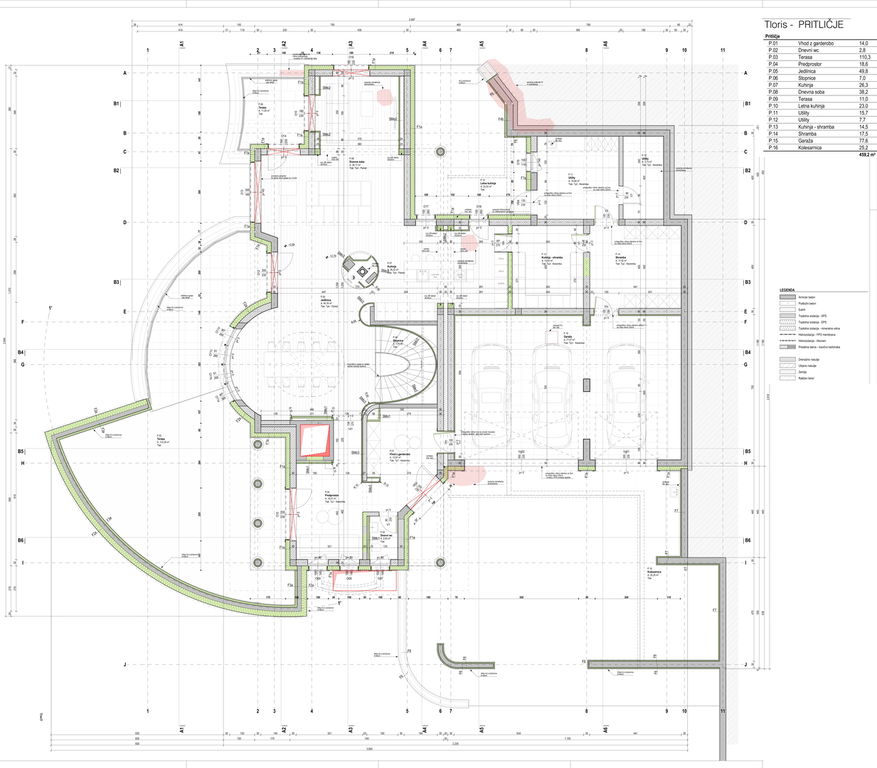
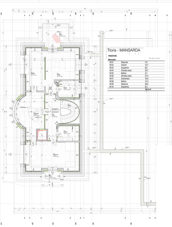
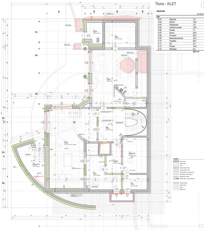
Občina Maribor, Malečnik: edinstvena Vila z zunanjim in notranjim bazenom, dvigalom in garažo za tri avtomobile. Hiša je zgrajena do 3. gradbene faze in stoji na zemljišču velikosti 2.677 m2. Neto uporabna površina znaša 834 m2. S svojo dominanto, južno lego nudi panoramski pogled na Maribor, Pohorje in Dravsko dolino.
Video ogled:
LASTNOSTI NEPREMIČNINE
V neposredni bližini se nahajajo osnovna šola, vrtec, igrišča,… Center Maribora je oddaljen 4,5 km, prav tako uvoz na AC.
Ne zamudite te edinstvene priložnosti in pokličite zdaj.
| Avtobusna postaja: | 300 m |
| Pošta: | 500 m |
| Bankomat: | 0.5 km / 7 min |
| Šola: | 300 m |
| Vrtec: | 500 m |
| Trgovina: | 2500 m |
| Park/igrišče: | 300 m |
| Avtocesta: | 4500 m |
