SOSESKA SONČNE REZIDENCE VIVENDI – idealen dom za mlade družine in pare, ki želijo kakovostno bivanje blizu Maribora
Sončne Rezidence Vivendi v Bistrici ob Dravi so zasnovane za kupce, ki želijo sodobno, energetsko varčno in funkcionalno hišo v mirnem, zelenem okolju, le nekaj minut vožnje od Maribora.
Sosesko sestavlja 19 novih stanovanjskih enot privlačnih oblik, urejenih tlorisov in premišljene razporeditve, ki mladim družinam in parom omogoča udobno in praktično bivanje.
Izbirate lahko med hišami, zasnovanimi v dveh etažah (P+1). Hiše zagotavljajo dovolj zasebnosti, hkrati pa ponujajo prijetne zunanje površine – idealno za družine, otroke in ljubitelje življenja na prostem.
Zakaj je ta hiša odlična za mlade družine in pare?
popolna razporeditev: svetel dnevni prostor s kuhinjo in jedilnico, izhod na teraso in zelenico, v nadstropju pa dve otroški sobi in spalnica
nizki stroški bivanja: predvideno ogrevanje s toplotno črpalko, troslojna okna, dobra izolacija
mirna in zelena soseska, idealna za otroke
2 parkirni mesti pod nadstreškom + shramba
podaljšana faza omogoča, da notranjost dokončate po svojem okusu in finančnih možnostih
odlično razmerje med ceno in kakovostjo
Mikrolokacija, ki rešuje vsakodnevne potrebe
Vse ključne storitve so nekaj minut hoje stran:
110 m do kavarne
150 m do železniške postaje (hitri dostop do Maribora)
350 m do vrtca
400 m do trgovine
500 m do otroškega igrišča
6,9 km do centra Maribora
Lokacija je idealna za vsakogar, ki želi živeti mirno, a ostati blizu mesta in vseh dnevnih obveznosti.
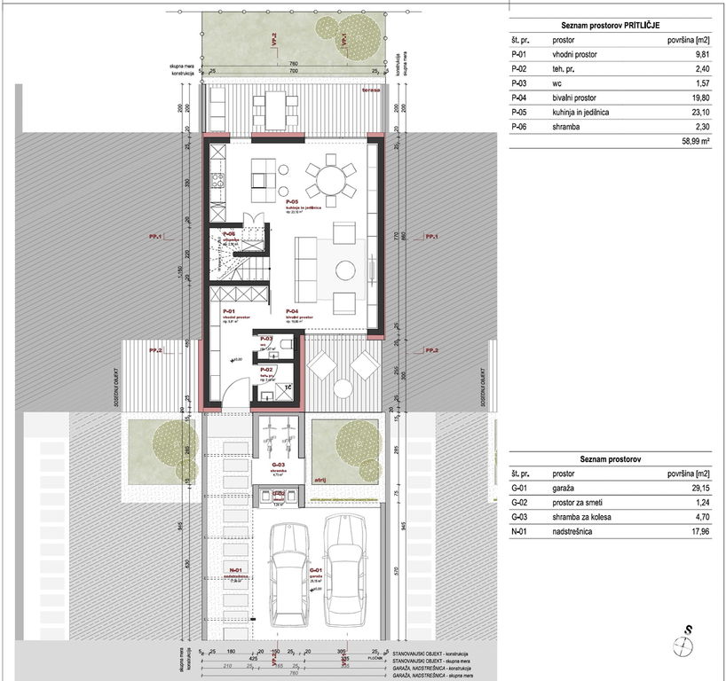
Tehnične značilnosti in tlorisi
Pritličje vključuje:
vhodni prostor, WC, tehnični prostor, dnevni prostor, kuhinjo z jedilnico, shrambo, teraso, atrij, nadstrešek za 2 avta in kolesarsko lopo.
Nadstropje vključuje:
dve otroški sobi, spalnico, kopalnico ter hodnik s stopniščem.
Gradnja je kakovostna: opečno-betonska konstrukcija, fasada s toplotno izolacijo, troslojna PVC okna, vsa infrastruktura je urejena do objekta.
Cena in faza izvedbe
Hiše se prodajajo v 3. podaljšani gradbeni fazi:
vgrajena okna, vhodna vrata, streha, fasada, dovozi, osnovna ureditev okolice in nadstrešek - zunaj dokončan objekt.
To kupcu omogoča popolno prilagoditev notranjosti njegovim potrebam ter postopno investicijo v dokončanje.
Kaj pridobite poleg nakupa?
brezplačno svetovanje pri prodaji vaše obstoječe nepremičnine
pomoč pri ureditvi ugodnega hipotekarnega kredita
možnost hitre rezervacije – prodaja že poteka
| Avtobusna postaja: | 1.0 km / 14 min |
| Pošta: | 0.3 km / 4 min |
| Bankomat: | 1.7 km / 24 min |
| Šola: | 25 m / 1 min |
