MARIBOR, TABOR: Prodamo svetlo in urejeno 3-sobno stanovanje, z zelo lepo lego in odlično razporeditvijo prostorov. Parkiranje je omogočeno pred objektom.
LASTNOSTI NEPREMIČNINE:
Stavba letnik 1967, prenovljeni streha in fasada
Nadstropje: 2. nadstropje, v stavbi je dvigalo
Površina stanovanja: 64,7 m2 (60,00 m2 uporabne površine)
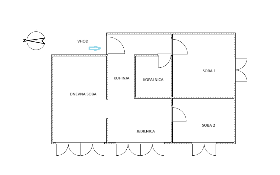
Razporeditev: vhod z garderobo, kuhinja z jedilnico, dnevna soba, 2 sobi (trenutno urejeni kot otroški sobi), kopalnica s straniščem. Tloris stanovanja je na voljo med fotografijami.
Stanovanje ima odprt, pretočen tloris in je premišljeno opremljeno: omarna postelja v dnevni sobi omogoča, da sta preostali sobi urejeni kot otroški sobi.
K stanovanju spada tudi kletna shramba.
Lega: Jug in zahod. Spalni in bivalni prostori v stanovanju imajo velika okna in so lepo osončeni, z razgledom na dvoriščno stran in Pohorje.
Prenove: Stanovanje je bilo v celoti prenovljeno l. 2019 - tudi elektro in vodovodne instalacije!
Talne obloge: laminat, keramika
Okna: 2-slojna PVC.
Priključki: elektrika, voda, optika
Ogrevanje: centralno preko toplarne. V dnevnem prostoru je klima naprava.
Zemljiškoknjižno stanje: urejeno.
Dodatno: klima naprava, obilo naravne svetlobe, parkiranje na dvorišču, za zapornico.
Stanovanje se prodaja opremljeno.
Zaradi odlične lokacije v Mariboru – Tabor, bližine vse potrebne infrastrukture, zelenih površin in sprehajalnih poti, je stanovanje idealna izbira za družine, pare ali posameznike, ki iščejo kakovosten, funkcionalen in prijeten dom na mirni, a hkrati dobro dostopni lokaciji.
Za dodatne informacije in rezervacijo termina ogleda pokličite na telefonsko številko 051 610 557 (Nataša Goričan) ali pišite na e-mail: natasa@24nep.si
| Avtobusna postaja: | 100m |
| Trgovina: | 150m |
| Pekarna: | 300m |
| Banka: | 250m |
| Frizerski salon: | 150m |
| Lekarna: | 250m |
