V strogem centru Ptuja prodamo podstrešje, ki ima urejen etažni elaborat in pripravljen plan sanacije strehe. Nepremičnina ima zaradi svoje izjemne lokacije ogromno še neizkoriščenega potenciala.
OSNOVNE INFORMACIJE:
Naslov: Miklošičeva 3, Ptuj
Lokacija: https://maps.app.goo.gl/K7AupvwHxVLCDwLAA
Video predstavitev: https://youtu.be/QKdQI-0VqCM
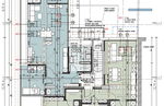
Neto tlorisna površina (enota 15): 37,6 m2
Neto tlorisna površina (enota 17): 237,8 m2
Dokumentacija: pripravljen DGD in pridobljeno soglasje ZVKD, kar je podlaga za pridobitev Gradbenega dovoljenja
Ogled in nakup priporočam tistim, ki imajo željo po lastnem ustvarjanju in se zavedajo potenciala strogih mestnih centrov, ki so v zadnjih letih zelo iskane lokacije.
Za vse dodatne informacije sem vam z veseljem na voljo na 031-838-638.
| Avtobusna postaja: | 700m |
| Pekarna: | 65 m |
| Pošta: | 300m |
| Šola: | 200m |
