Ptujska Gora, Majšperk – Poslovno-stanovanjski objekt z izdelanim idejnim projektom
Na prodaj je poslovno-stanovanjski objekt z neizdelano mansardo.
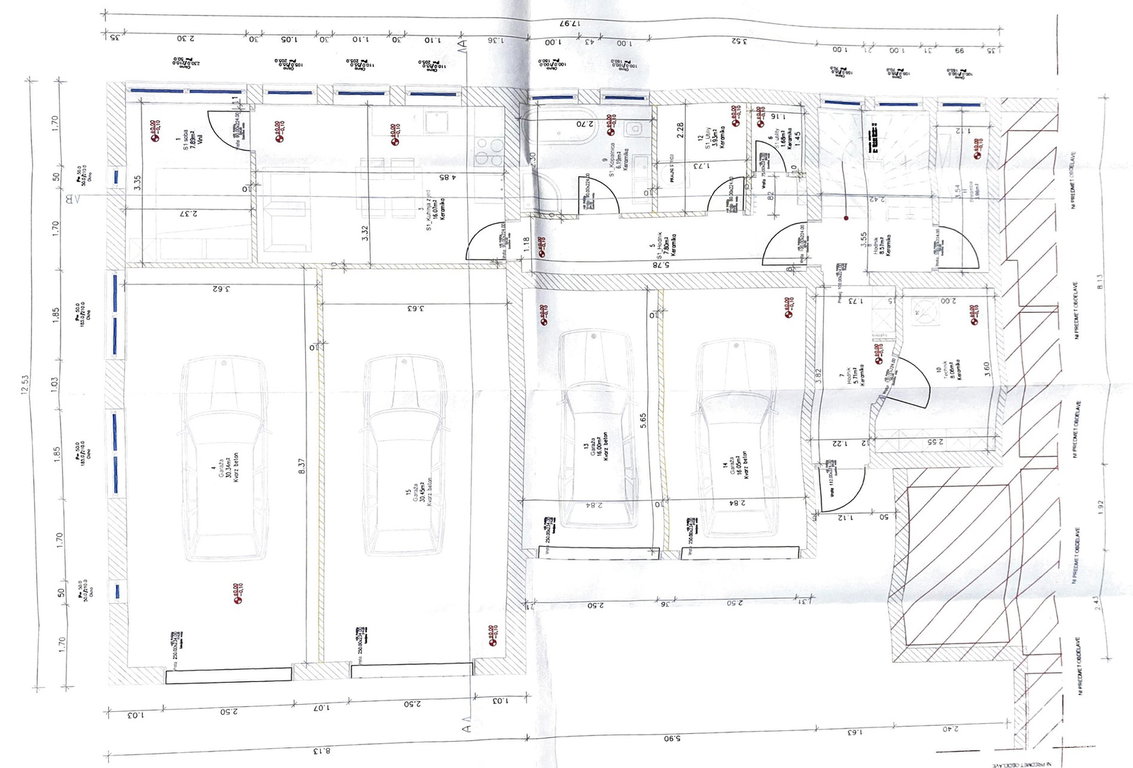
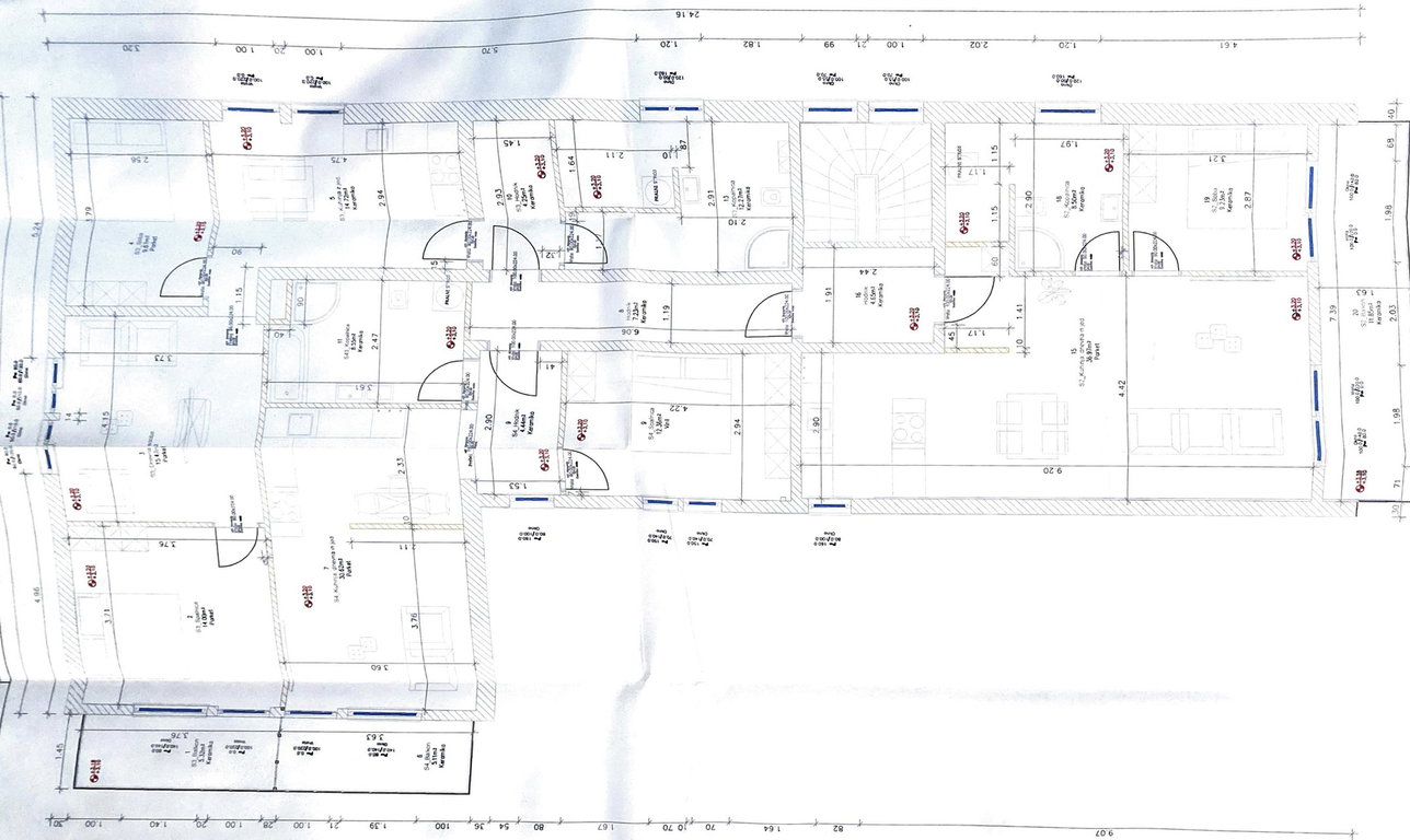
V naravi nepremičnina trenutno obsega pritlične prostore, kjer sta nekoč delovala gostinski lokal in trgovina, ter nedokončane bivalne prostore v mansardi. Za celoten objekt je izdelan projekt rekonstrukcije, po katerem so v mansardi predvidena tri stanovanja, v pritličju pa eno stanovanje, pomožni prostori (kurilnica ipd.) ter garažni prostor za štiri avtomobile.
Objekt se nahaja na vrhu hriba ob asfaltirani lokalni cesti, iz katere je urejen neposreden dostop do nepremičnine.
Video ogled: https://youtu.be/gNQSzoTFmVs
Lokacija: https://maps.app.goo.gl/NzDTrctA1pcBkkeu9
Lastnosti nepremičnine
Letnik: 1991
Površina parcele: 461 m²
Neto tlorisna površina objekta: 381,4 m²
Priključki: elektrika, voda, telefonski priključek (trenutno vse odklopljeno); potrebno urediti odvodnjavanje fekalnih vod
Zemljiškoknjižno stanje: urejeno
Dodatno: izdelan projekt za izgradnjo štirih stanovanj (predlog viden med fotografijami)
Priložnost za investitorje
Izjemna investicijska priložnost
Lokacija na Ptujski Gori (hišna številka 95) združuje mirno, zeleno okolje in dobro prometno povezavo. Do avtocestnega priključka Hajdina je približno 15 minut vožnje, do Ptuja okoli 20 minut, do Maribora približno 35 minut, do Slovenske Bistrice pa le 25 minut.
Zaradi urejenega projekta in možnosti izgradnje štirih stanovanj je to odlična priložnost za investitorje, ki iščejo nepremičnino z jasnim potencialom in lepo lokacijo za bivanje ali nadaljnjo prodajo.
Vabljeni k ogledu in nakupu!
Za dodatne informacije ali termin ogleda sem vam z veseljem na voljo.
Nataša Poljanec, št. licence: 3061
+386 (0)40 501 553
natasa.p@24nep.si
Z veseljem vam svetujem tudi pri prodaji vaše nepremičnine!
