facebook pixel

Podravska, Maribor

4-sobni Penthouse v centru mesta

Prodaja · Stanovanje · 4-sobno · 136.3 m2 · 1954

453.900 €

Splošno

  • Dodatno
    TerasaDvigaloKletParkirišče
  • Priključki
    ElektrikaVodaKanalizacijaPlinovodKabelski priklj.
  • Ogrevanje
    PlinTalno gretje
  • Lega
    SJ
  • Luksuz
    KlimaLep razgledBližina naraveVrhnje nadstropjeZelo sončno

Energetski razred

Podroben opis

zadnje nadstropje, obnovljeno in opremljeno, izredno svetlo, prostorno, dve terasi, plinska peč

4-sobni Penthouse v centru mesta

 

Maribor, Center: Prodamo izredno svetlo, popolnoma obnovljeno in opremljeno 4-sobno stanovanje z dvema terasama, ki se nahaja v neposredni bližini Trga Borisa Kidriča. Parkiranje je na dvorišču za zapornico. Možen takojšen prevzem in vselitev.

Čudovit razgled na Piramido.

Video predstavitev nepremičnine: klikni za video

LASTNOSTI NEPREMIČNINE:

  • Leto gradnje: 1954; nova streha 2023
  • Popolnoma obnovljeno 2020
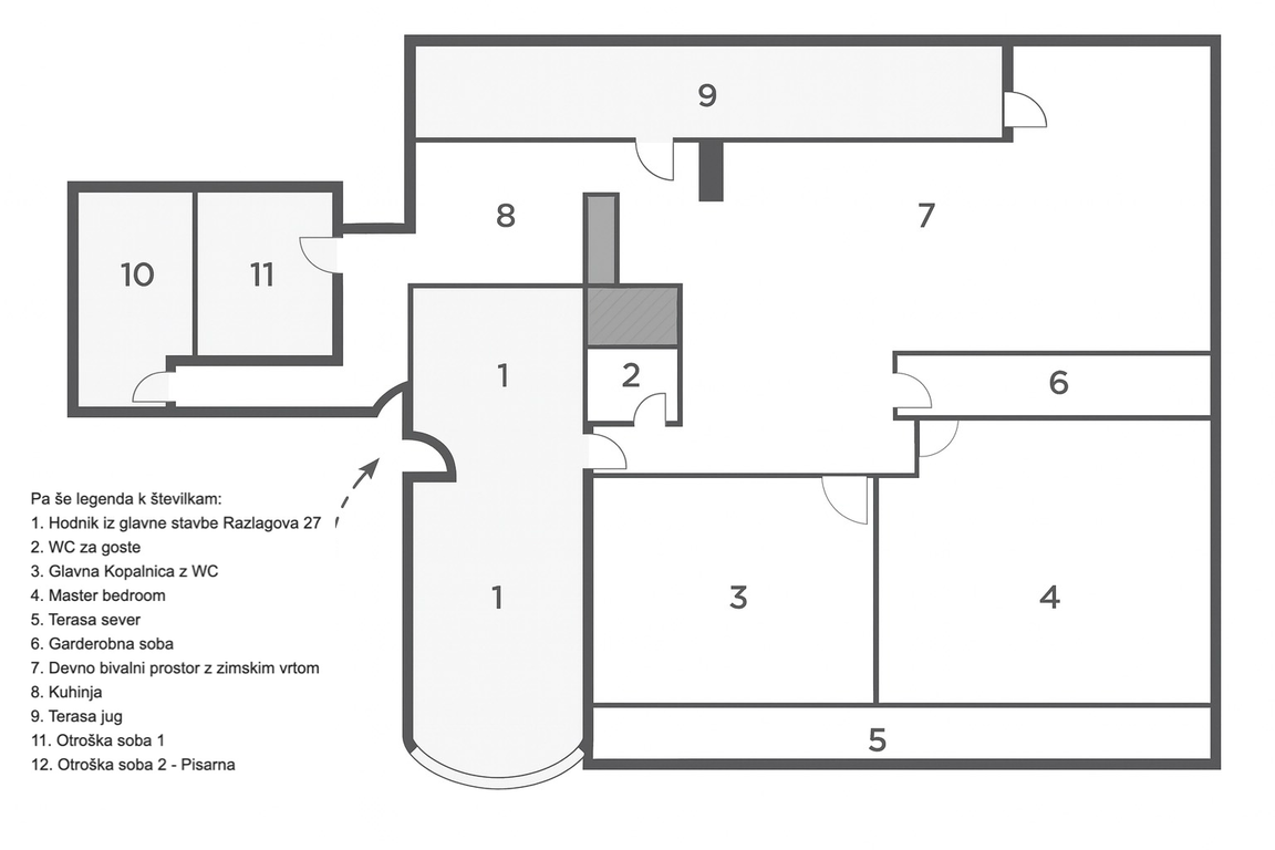
  • Naslov: Razlagova ulica 27, Maribor - povezava do lokacije
  • Nadstropje: 4. (dvigalo)
  • Lega: jug-sever
  • Površina: 136,30 m2 (GURS);
    • Opomba: dejansko izmerjenih: 128 m2 bivalne povrsine + dve terasi, terasa jug-15m2; terasa sever-11m2, ter klet v izmeri 7m2 (vse skupaj 161 m2) 
  • Razporeditev: predsoba, ločen WC, kopalnica, garderoba, spalnica - terasa sever, dnevno-bivalni prostor z jedilnico, kuhinja, terasa - jug, hodnik, otroška soba 1, otroška soba 2.
  • Talne obloge: vinil, keramika
  • Okna: 3- slojna PVC + zunanje žaluzije (el. pogoni)
  • Priključki: elektrika, voda, catv, plin, kanalizacija
  • Ogrevanje: plinska peč (talno)
  • Stanovanje je klimatizirano
  • Kompletno opremljeno; predpriprava za savno in jacuzzi - terasa sever

Priporočamo ogled in nakup vsem, ki iščejo svetlo in funkcionalno stanovanje v neposredni bližini vse potrebne infrastrukture in peš do centra mesta.

Kaj je v bližini

Avtobusna postaja:90m

Kontaktirajte nas