*** Mirna lega, odprt razgled in tloris, kjer sobe niso kompromis ***
V Radizelu, na mirni in zaželeni legi, na hribu z odprtim razgledom, je na voljo enota dvojčka, ki združuje kakovostno gradnjo in prijetno bivanje v stiku z naravo.
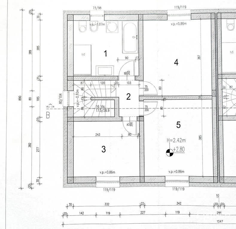
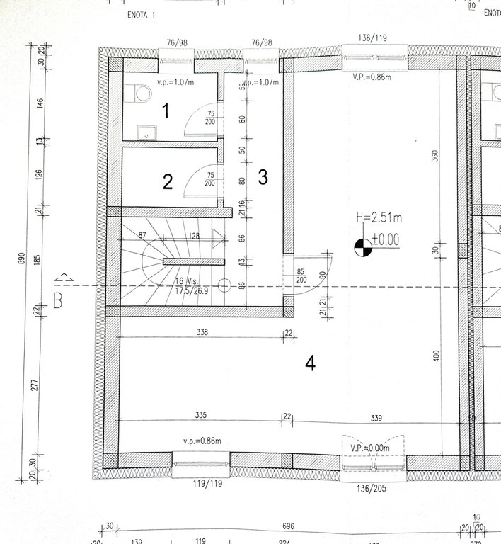
Na voljo je enota dvojčka neto tlorisne površine 148,6 m², oz. uporabne površine 109,9 m²
• Etažnost: K+P+N
• Gradnja: opečna (30 cm) z AB vezmi; klet v betonski izvedbi
• Fasada: 18 cm izolacija in zaključni sloj
• Streha: dvokapnica, opečna kritina
• Okna: 3-slojna PVC, proizvajalca AJM, z roletami
• Vhodna vrata: PVC, proizvajalca AJM
• Ogrevanje: toplotna črpalka Daikin (zrak–voda), talno gretje
• Talne obloge: keramika, laminat
• Klimatska naprava
• Rekuperacija
• Garaža
• Zunanje nepokrito parkirišče in skupno parkirišče za obiskovalce
Razporeditev:
Klet: vetrolov, tehnični prostor, shramba, garaža
Pritličje: hodnik s stopniščem, WC, shramba, bivalni prostori z izhodom na teraso
Nadstropje: hodnik s stopniščem, kopalnica, spalnica, soba 1, soba 2
Tloris je zasnovan premišljeno — sobe niso kompromis, ampak ponujajo dejansko uporabno površino za udobno bivanje.
• Zemljišče: lastnik enote ima v izključni uporabi zemljišče v izmeri 211 m². Dodatno je za uporabo, dostop in parkiranje na voljo površina v izmeri 200 m², ki je skupna obema enotama.
Nepremičnina se nahaja v bližini narave, hkrati pa je do AC priključka le približno 5 minut vožnje, kar omogoča hitro dostopnost do Maribora in širše.
Če iščete sodoben dom na mirni lokaciji z razgledom, ki hkrati omogoča dobro povezavo z mestom, je ta nepremičnina vredna vašega ogleda.
Za dodatne informacije in rezervacijo termina ogleda pokličite na telefonsko številko 051 610 557 (Nataša Goričan) ali pišite na e-mail: [email protected]
