O NASELJU
V prijetnem naselju novo nastajajočih hiš v Zgornjem Dupleku, v neposredni bližini osnovne šole, je v izgradnji prostoren dvojček sodobne arhitekture. Zgrajen bo v skladu s potrebami sodobnega načina življenja, saj zasnova poudarja stik udobnega življenja in narave.
Bivanje v novogradnji vam bo omogočalo prijetno, sproščeno in varno bivalno okolje. Premišljen tloris omogoča, da se steni enot stikata le v otroški sobi.
Novogradnja je postavljena v bližino naravnega okolja krajinskega parka, ki nudi neomejene možnosti za rekreacijo, hkrati pa je na dosegu bližina potrebne infrastrukture - avtobusna postaja in osnovna šola sta oddaljeni 1 minuto, v bližini nastaja nov trgovski center.
KAKO BO NAREJENO?
Nepremičnina je sestavljena iz dveh enostanovanjskih stavb. Etažnost objekta je P+1. Osnovo gradnje predstavlja betonska konstrukcija. Okna bodo 3-slojna, PVC, z aluminijastimi roletami in okenskimi policami. Fasada bo toplotno izolacijska, debeline 20cm, z zaključnim nanosom. Streha bo ravna, proizvajalca Bouder, s 22cm izolacije in prodcem.
Hiša bo ogrevana preko talnega gretja, s toplotno črpalko sistema zrak/voda, proizvajalca Toshiba. Urejen bo centralni prezračevalni sistem, ki bo na osnovi vmesnika omogočal tudi dogrevanje in pohlajevanje prostorov in uravnavanje vlage.
Vsaka enota bo imela urejeno in ograjeno okolico. Terasa, zasnovana tako, da bo omogočala zasebnost, bo tlakovana in pokrita z bioklimatsko pergolo, z integrirano LED osvetlitvijo in motorno pomičnimi lamelami na daljinsko upravljanje. Predvideno je pokrito parkirno mesto/nadstrešek za dva avtomobila. Sodobni dizajn bo poudarjen s posameznimi stenami vidnega betona.
Hiši se prodajata na ključ.
Velikost posamezne parcele bo cca. 350 m2.
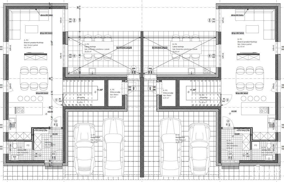
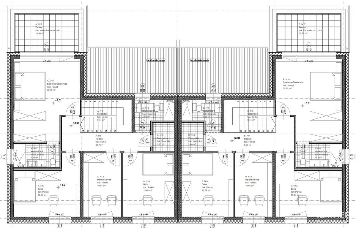
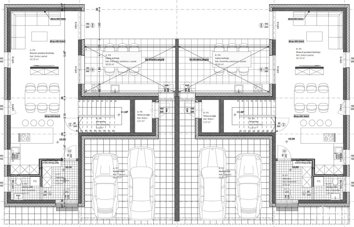
POVRŠINE PROSTOROV
Prostori:
PRITLIČJE
NOTRANJE POVRŠINE:
Skupaj 55,34 m2
ZUNANJE POVRŠINE
Skupaj 59,55m2
NADSTROPJE
NOTRANJE POVRŠINE:
Skupaj 84,52 m2
ZUNANJE POVRŠINE
Skupaj 10,50 m2
NOTRANJE POVRŠINE: 139,86 m2
ZUNANJE POVRŠINE: 70,05 m2
Podrobnejši opis izvedbe je na voljo pri opisu posamezne enote.
Nudimo brezplačno svetovanje ali pomoč pri prodaji vaše obstoječe nepremičnine! Pomagamo pri ureditvi ugodnega hipotekarnega kredita.
